The Altus® Window Shroud adds depth, definition and architectural clarity to modern façades. By projecting beyond the wall plane, it creates strong horizontal and vertical lines that elevate the visual impact of windows and doors — without compromising weather-tightness or build efficiency.
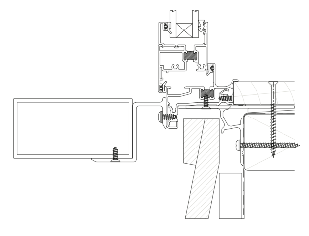
Purpose-designed to integrate directly with Altus® Window Systems, the shroud is fixed to the window or door frame during fabrication, not through the cladding. The result is a cleaner aesthetic, a simpler install, and a more robust building envelope.
Why choose the Altus® Window Shroud?
A smarter approach to architectural shading and façade detail.
Traditional shrouds are often fixed through the cladding, introducing penetrations, additional trades, and increased compliance risk.
The Altus® Window Shroud is different by design.
The Altus® advantage includes:
- Direct fixing to the window frame and liner – no cladding penetrations
- Clean, discreet detailing with no exposed fixings
- Reduced risk of weather-tightness issues
- Streamlined installation and lower on-site labour
- Backed by Altus® engineering and compliance documentation
Core performance aspects
Introduces strong lines and visual depth, breaking up flat façades
Can be strategically positioned to reduce solar gain and enhance privacy
Fixed directly to the window or door frame – no cladding penetrations, no leaks
Backed by Altus® design, testing, and compliance documentation, including a generic PS1
Made from robust 50mm x 3mm aluminium box section, available in 100, 150, 200, or 250mm depths (custom sizes on request)
Available in the full Dulux™ powdercoat colour range for complete design freedom
Pre-fabricated and installer-friendly, reducing labour time and on-site complexity